Многоквартирный жилой дом в районе жилого дома № 54а по улице Краснозвездной в г. Могилеве с благоустройством прилегающей территории 2 очередь строительства
Начало строительства — 15 октября 2025 года
Предполагаемый срок окончания строительства — 14 августа 2026 года
Нормативная продолжительность строительства – 10 месяцев в соответствии с проектно-сметной документацией. Перенос, приостановка, разделение на этапы сроков строительства, а также увеличение или уменьшение нормативного срока продолжительности строительства, изменяются в порядке, установленном законодательством.
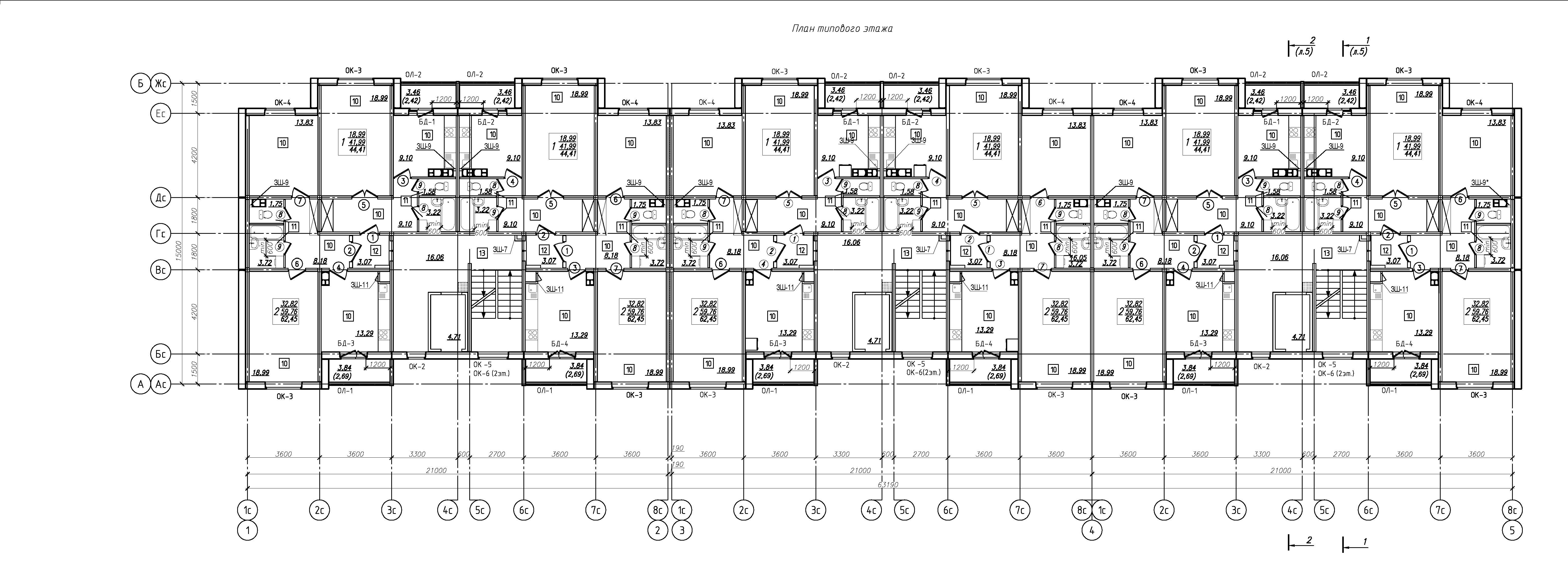
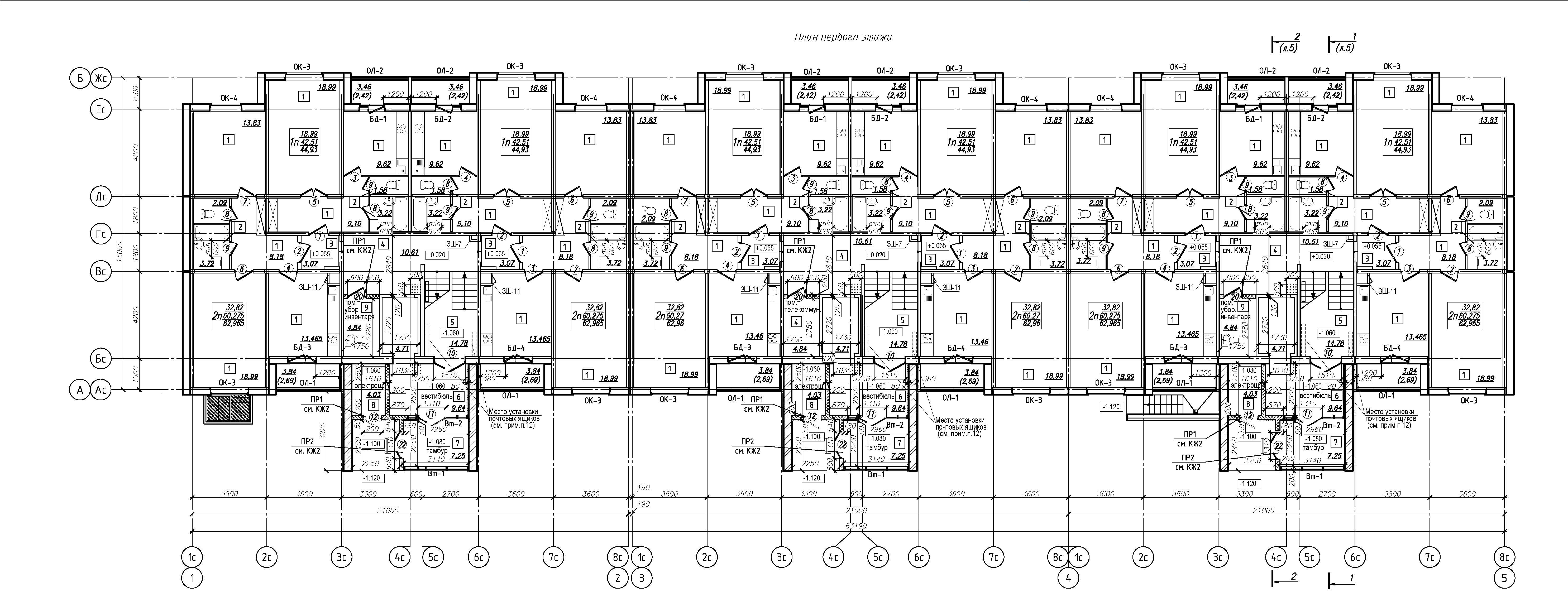
Объект строительства «Многоквартирный жилой дом в районе жилого дома № 54а по улице Краснозвездной в г. Могилеве с благоустройством прилегающей территории» 2 очередь строительства запроектирован 108-квартирным, трехсекционным, 9-этажным с панельными стенами, с техническим этажом и электрическим отоплением. Цель проекта: строительство объектов долевого строительства для личных, семейных, бытовых и иных, не противоречащих законодательству нужд.
Место нахождения объекта строительства (многоквартирного жилого дома): на территории Ленинского района г. Могилёва, в зоне жилой застройки «Казимировка».
Приём заявлений и заключение договоров будет осуществляться
с 24 ноября 2025 г.
Информацию о свободных квартирах
уточняйте по телефону 65-29-48
Заключение договоров осуществляется на строительство
103 следующих квартир, расположенных на разных этажах:
общей площадью:
44,41 м2
44,93 м2
общей площадью:
62,96м2,
62,45 м2
Ориентировочная стоимость 1 м2
общей площади на дату публикации проектной декларации составляет:
для граждан, состоящих на учете нуждающихся в улучшении жилищных условий, направленных на строительство жилых помещений в соответствии с действующим законодательством
(без выполнения отделочных работ)
для граждан, не состоящих на учете нуждающихся в улучшении жилищных условий
(без выполнения отделочных работ)
для юридических лиц, за исключением бюджетных организаций
(без выполнения отделочных работ)
Ориентировочная стоимость строительства 1 м2 общей площади квартир может быть изменена застройщиком в одностороннем порядке согласно действующему законодательству.
Для строительства объекта Застройщик располагает: земельным участком площадью 0,3344га для строительства жилого дома, свидетельством о государственной регистрации возникновения права на земельный участок № 700/976-23243; проектно-сметной документацией, прошедшей обязательную государственную экспертизу (заключение от 27 августа 2024 года № 524-80/24); договором строительного подряда № 2/51-25 от 01.10.2025г., заключенным с ОАО «Могилевский домостроительный комбинат».
В состав имущества, являющегося общей долевой собственностью, входят: места общего пользования, несущие и ограждающие конструкции, электрическое, сантехническое и иное оборудование и трубопроводы, находящиеся внутри и за пределами жилых и нежилых помещений дома, элементы озеленения и благоустройства, а также иные объекты недвижимости, служащие целевому использованию здания, если финансирование этих объектов производилось дольщиками.
Заключение договоров осуществляется в жилищном отделе Государственного предприятия «УКС г. Могилева» с 24 ноября 2025г. Заявления подлежат регистрации в порядке очередности их подачи. Более подробную информацию по вышеуказанному объекту можно получить по телефону 8 (0222) 65-29-48 и на сайте: http://uksmogilev.bу.
