Проектная декларация по объекту «Многоквартирный жилой дом №7 по генплану с благоустройством прилегающей территории в квартале №3 микрорайона №2 в районе многоэтажной жилой застройки «Соломинка-2» в городе Могилеве» 1 очередь»
Проектная декларация Коммунальное унитарное дочернее предприятие «Управление капитальным строительством г. Могилева» осуществляет заключение договоров на долевое строительство квартир по объекту «Многоквартирный жилой дом №7 по генплану с благоустройством прилегающей территории в квартале №3 микрорайона №2 в районе многоэтажной жилой застройки «Соломинка-2» в городе Могилеве» 1 очередь»
Информация о застройщике
Государственное предприятие «УКС г. Могилева» (г. Могилев ул. Первомайская д.29/1, режим работы в рабочие дни недели с 8-00 до 13-00, с 14-00 до 17-00) зарегистрировано в Едином государственном реестре за №700333460, за период с 2022г. по 2024г. выполняло функции застройщика по строительству следующих социально-значимых объектов: реконструкция с реставрацией памятника архитектуры ХVIII – XIX в.в. Дворцово-парковый ансамбль в д.Жиличи Кировского района, строительство детского сада на 240 мест в границах улиц Крупской, Стасова, Гришина, Калужской г. Могилёва; жилой микрорайон «Спутник-2» в городе Могилеве III очередь (подземный переход); строительство средней школы на 1020 мест в граница улиц Крупской, Стасова, Гришина Калужской г.Могилева с благоустройством прилегающей территории; строительство здания патологоанатомического отделения на территории УЗ «Могилевская городская больница скорой медицинской помощи» в г.Могилеве; строительство магистральных водоводов для водоснабжения микрорайона «Межегорье» в г.Могилеве; а также по строительству 47 объектов жилого фонда и более 20 объектов инженерно-транспортной инфраструктуры. Фактические сроки строительства объектов составляли от 6 до 18 месяцев.
Информация о проекте строительства
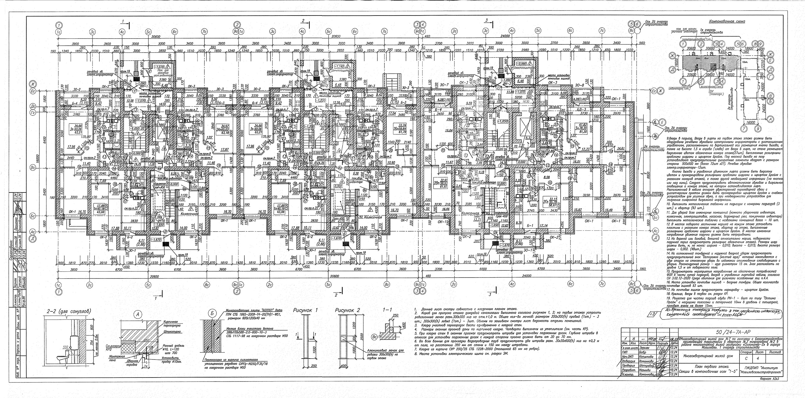
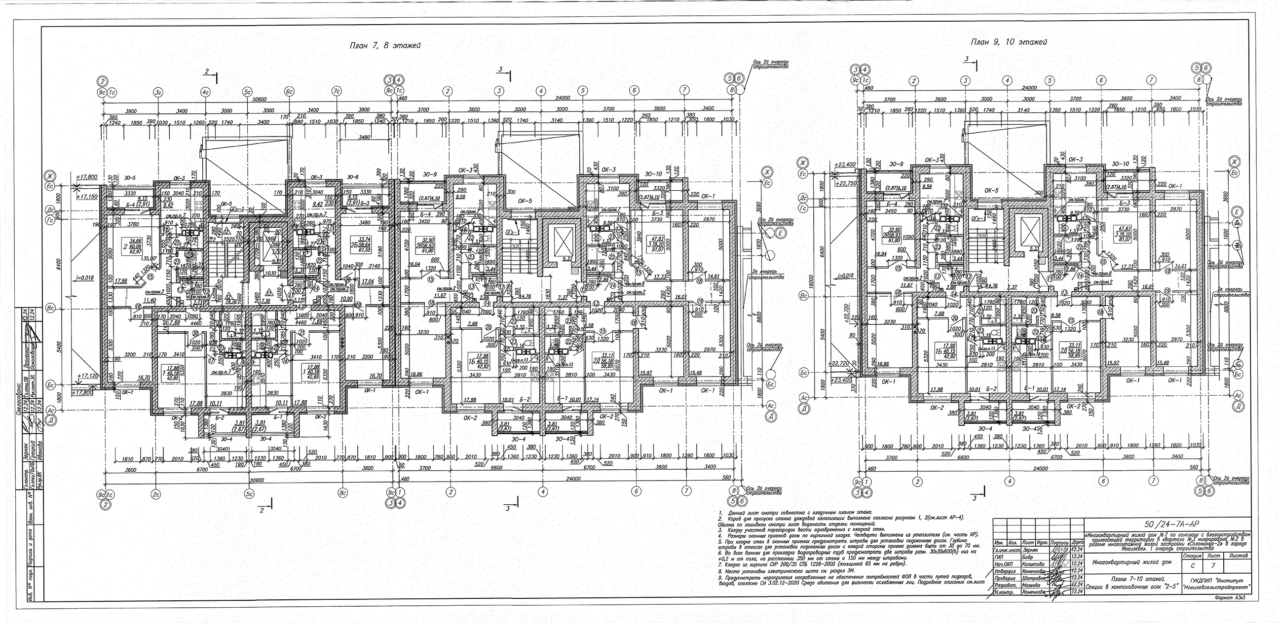
В целях реализации государственной программы по строительству арендного жилья, реализации имущественных прав граждан, в связи с изъятием земельных участков для государственных нужд, а также для граждан, состоящих на учете нуждающихся в улучшении жилищных условий и направленных на строительство в соответствии с действующим законодательством, запланировано строительство объекта «Многоквартирный жилой дом №7 по генплану с благоустройством прилегающей территории в квартале №3 микрорайона №2 в районе многоэтажной жилой застройки «Соломинка-2» в городе Могилеве» 1 очередь». Дом запроектирован трехсекционным 6-8-10-ти этажными, 93-квартирным, кирпичным, без технического этажа и с электрическим отоплением.
.Место нахождения объекта строительства (многоквартирного жилого дома): расположен в Ленинском административном районе г.Могилева, в проектируемом квартале №3 микрорайона №2 района многоэтажной жилой застройки «Соломинка-2». С северо-востока пролегает улица Турова, на северо-западе дворовая территории, с юго-востока местный проезд.
Наличие свободных квартир уточняйте по месту постановки на учёт
Заключение договоров осуществляется на строительство 93 следующих квартир, расположенных на разных этажах:
42,43 м2; 42,82 м2; 42,85 м2; 43,06 м2;
58,46 м2; 58,67 м2; 58,85 м2; 61,55 м2; 61,79 м2; 61,80 м2; 61,93 м2; 62,94 м2; 62,97 м2; 63,18 м2; 63,21 м2;
81,07 м22; 81,20 м2.
Ориентировочная стоимость строительства 1 м2 общей площади
на дату публикации проектной декларации для жилых помещений
для граждан, состоящих на учете нуждающихся в улучшении жилищных условий, направленных в соответствии с действующим законодательством без выполнения отделочных работ составляет
2 378,61 рублей.
Ориентировочная стоимость строительства 1 м2 общей площади квартир может быть изменена застройщиком
в одностороннем порядке согласно действующему законодательству.
Сведения об этапах и о сроках реализации проекта строительства: начало строительства – сентябрь 2025 г., предполагаемый срок окончания строительства – июнь 2026 г. с переносом сезонных работ на благоприятный период времени с 15 по 30 апреля 2026г. Нормативная продолжительность строительства – 10,5 месяцев в соответствии с проектно-сметной документацией. Перенос, приостановка, разделение на этапы сроков строительства, а также увеличение или уменьшение нормативного срока продолжительности строительства, изменяются в порядке, установленном законодательством.
Для строительства объекта Застройщик располагает: земельным участком площадью 0,5048 га для строительства жилого дома, свидетельством о государственной регистрации возникновения права на земельный участок №700/174-17208; проектно-сметной документацией, прошедшей обязательную государственную экспертизу (заключение от 20 марта 2025 года №63-80/25); договором строительного подряда №2/19-25 от 05.05.2025г., заключенным с торгово-строительным унитарным предприятием «МСС15».
В состав имущества, являющегося общей долевой собственностью, входят: места общего пользования, несущие и ограждающие конструкции, электрическое, сантехническое и иное оборудование и трубопроводы, находящиеся внутри и за пределами жилых и нежилых помещений дома, элементы озеленения и благоустройства, а также иные объекты недвижимости, служащие целевому использованию здания, если финансирование этих объектов производилось дольщиками.
Заключение договоров осуществляется в жилищном отделе Государственного предприятия «УКС г. Могилева» с 9 июня 2025 г. Заявления подлежат регистрации в порядке очередности их подачи. Более подробную информацию по вышеуказанному объекту можно получить по телефону 8 (0222) 65-29-48 и на сайте: http://uksmogilev.bу.
Схема расположения и планировки квартир:



